8 langkah prinsip kerja pada motor 3 phasa yang bekerja berurutan secara manual dengan menggunakan 2 buah tombol on
Pada di bawah ini mengenai langkah-langkah cara kerja pada sebuah motor 3 phasa yang bekerja berurutan secara manual dengan menggunakan 2 tombol on
Prinsip kerja pada rangkaian motor 3 phasa ini adalah jika ingin menghidupkan motor listrik 3 phasa yang kedua harus didahului menghidupkan motor listrik 3 phasa yang pertama, intinya harus menghidupkan tombol on terlebih dahulu baru lanjut menghidupkan motor listrik yang kedua. Karena pada prinsip kerja rangkaian ini bekerja secara manual.
Di bawah ini ada beberapa langkah-langkah menjelaskan bagaimana cara kerja pada rangkaian ini dan juga menjelaskan dengan menggunakan video simulasinya sebagai berikut.
1. Posisi normal pada rangkaian kontrol ketika belum bekerja atau MCB (Miniature circuit breaker) masih dalam kondisi Off
Pada gambar di bawah ini dapat dijelaskan bagaimana sebuah rangkaian kontrol masih dalam kondisi normal atau belum diberikan tegangan sehingga pada rangkaian tersebut belum bekerja.
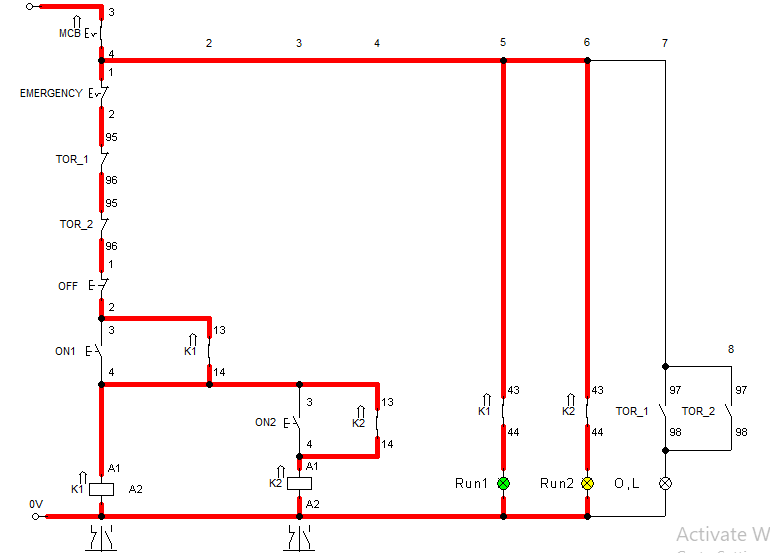
2. Kondisi ketika MCB diaktifkan atau dihidupkan
Ketika MCB dihidupkan maka aliran listrik hanya mengalir sebatas tombol on saja yang mana tombol on belum diaktifkan karena masih dalam keadaan NO (Normally Open). Sehingga pada sebuah rangkaian ini tidak mempunyai reaksi apapun seperti yang terdapat pada gambar tersebut, karena ketika MCB dihidupkan tegangan hanya masuk atau menggalir sebatas tombol on yang pertama atau on1 saja.
Pada gambar rangkaian ini hampir sama dengan rangkaian motor listrik 3 phasa yang bekerja berurutan secara automatis, untuk menghidupkan motor listrik 3 phasa yang keduanya. Pada rangkaian tersebut harus menggunakan sebuah timer.
Sedangkan pada rangkaian kontrol ini untuk menghidupkan motor listrik 3 phasa yang keduanya harus mengunakan sebuah tombol on atau tombol on2. Selanjutnya pada rangkaian kontrol ini agak berbeda karena posisi lampu indikator stop tidak ada.
Karena pada lampu indikator stop atau yang warna merah digunakan sebagai lampu indikator overload pada sebuah TOR (Thermal overload relay) seperti penjelasan yang terdapat pada gambar tersebut, lampu indikator yang warna hijau digunakan untuk motor listrik yang pertama, sedangka pada lampu indikator yang warna kuning digunakan sebagai penanda untuk menghidupkan motor listrik yang kedua. Penjelasannya dapat dilihat pada gambar di bawah ini.
3. Kondisi rangkaian kontrol ketika tombol on1 ditekan
Ketika tombol on1 ditekan maka pada kontaktor K1 aktif, dan ketika kondisi tombol on1 di lepas maka anak kontaktor K1 NO (Normally Open) yang 13 dan 14 saling terhubung atau bekerja sebagai pengunci, dan pada motor listrik 3 phasa yang pertama hidup atau bekerja. Dan pada lampu indikator warna hijau menyala, Menandakan bahwa pada motor listrik yang pertama sedang aktif atau sedang bekerja.
4. Kondisi tombol on2 ditekan
Setelah menghidupkan motor 3 phasa yang pertama maka selanjutnya menekan tombon on kedua atau on2, untuk menghidupkan motor 3 phasa yang kedua. Maka pada lampu indikator warna kuning menyala atau hidup. Sebagai penanda bahwa pada motor 3 phasa yang kedua sedang beroperasi atau sedang bekerja. Penjelasannya dapat dilihat pada gambar di bawah ini.
5. Penjelasan kegunaan pada lampu indikator thermal overload relay
Pada lampu indikator overload kali ini kita pakai menggunakan lampu bewarna merah yang mana pada dasarnya lampu warna merah ini digunakan untuk lampu stop atau lampu stand by pada sebuah panel dalam keadaan belum beroperasi atau motor listrik 3 phasa belum bekerja.
selanjutnya fungsi pada lampu overload ini ialah dapat menyala atau hidup, apabila terjadi trip pada sebuah motor 3 phasa yang disebabkan karena terjadi panas berlebihan yang terjadi pada motor itu sendiri maka bisa jadi misalnya kumparan motor terbakar.
Ini disebabkan karena tegangan yang tidak seimbang, dan beban motor yang diberikan melebihi dari kapasitasnya. Adapun penyebab lainya motor dapat trip misalnya ruangan memiliki kelembaban yang tinggi, dan kebocoran listrik.
Selain itu motor listrik 3 phasa bisa trip apabila pada sebuah rangkaian kontrol terjadi hubung singkat (short circuit), atau bisa jadi salah jalur pengkabelan yang sering disebut juga dengan salah instalasi listrik.
Penjelasan gambar di bawah ini terdapat anak kontak thermal overload relay atau yang sering disebut dengan TOR, dari anak kontak NO (Normally Open), yaitu 97 dan 98 dan berubah menjadi NC (Normally Close) atau menjadi terhubung sehingga pada lampu warnah merah dapat menyala atau hidup.
Intinya pada lampu indikator overload saat ini kita menggunakan lampu penanda berwarnah merah sebagai lampu penanda overload dari TDR, lampu penanda overload ini akan menyala atau hidup ketika apabila terjadi trip atau overload pada motor, atau apa bila terjadi trip pada rangkaian kontrol. Gambar sebagai berikut.
6. Posisi ketika tombol off ditekan
pada gambar di bawah ini menjelaskan bagaimana kondisi rangkaian kontrol pada saat tombol off telah ditekan sehingga yang terjadi ialah kedua motor listrik 3 phasa berhenti, dan kedua lampu indikator juga ikut padam atau mati. Karena pada rangkaian kontrol telah terputus atau tidak terhubung.
Berbeda dengan rangkaian kontrol motor 3 phasa yang bekerja berurutan secara automatis menggunakan sebuah timer. Apabila setelah menekan tombol off untuk stop beroperasi maka pada lampu indikator warnah merah menyala atau hidup, karena rangkaian kontrolnya dirancang agak berbeda dengan rangkaian kontrol motor 3 phasa yang bekerja secara manual.
Hanya saja pada rangkaian kontrol motor 3 phasa yang bekerja berurutan secara automatis tidak menggunakan lampu overload contohnya ada pada artikel saya yang selanjutnya mengenai rangkaian kontrolnya.
Karena pada rangkaian kontrol yang bekerja secara automatis seperti artikel saya yang selanjutnya menggunakan lampu stop dan tanpa menggunakan lampu dari overload dari thermal overload relay (TOR). Kekuranganya ialah pada saat terjadi overload atau beban lebih dan trip maka yang terjadi kita harus mengecek langsung ke kondisi panelnya.
Berbeda dengan rangkaian kontrol motor 3 phasa yang bekerja berurutan secara manual ini. Kita menggunakan atau mengfungsikan lampu indikator overload dari anak kontak thermal overload relay atau TOR, yang NO (Normally Open). Apabila jika terjadi trip atau beban lebih maka kita langsung mengetahui kondisi panel tersebut misal terjadi trip atau overload karena beban lebih atau sebagainya, sehingga pada lampu overloadnya yang berwarna kuning menyala dan berfungsi.
7. Kondisi ketika menekan tombol emergency
Dari penjelasan pada gambar di bawah ini dapat disimpulkan bahwa pada saat setelah menekan tombol emergency kita dapat memahami tidak jauh berbeda dengan hasil ketika pada saat tombol off telah ditekan seperti pada gambar di atas atau penjelasan dari pada nomor 6.
Pada intinya tombol emergency ini sama berfungsi seperti tombol stop atau tombol off yang berguna untuk menghentikan ketika panel sedang aktif atau beroperasi. Hanya saja fungsi pada tombol emergency ini agak berbeda, dan sudah lazim digunakan pada saat terjadi keadaan darurat atau mendesak karena komponennya yang didesain sedemikian khusus.
8. Video simulasi cara kerja pada rangkaian kontrol motor 3 phasa yang bekerja berurutan secara manual dengan menggunakan 2 tombol on
Pada video di bawah ini menjelaskan bagaimana cara kerja serta rancangan diagram kontrolnya yang dapat dibandingkan dengan artikel saya yang selanjutnya yang mengenai rangkaian kontrol motor 3 phasa yang bekerja berurutan secara automatis dengan menggunakan sebuah timer, untuk menghidupkan motor listrik 3 phasa yang keduanya. Adapun terdapat video simulasi rangkaian kontrol manual seperti di bawah ini, sebagai berikut.






